12x17m ground floor house plan drawing
Description
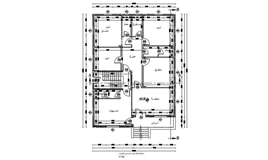
12x17m ground floor house plan drawing is given in this AutoCAD model. This is G+ 1 house building. The master bedroom with the attached toilet, kid’s room, guest room, kitchen, dining, living room, and two common bathrooms are available on this ground floor. For more details download the AutoCAD drawing file from our website.
Uploaded by:

