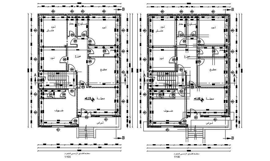
12x17m house plan door and window location drawing
Description
12x17m house plan door and window location drawing is given in this AutoCAD file. The ground floor drawing is given. And also, the staircase direction is mentioned. For more details download the AutoCAD drawing file from our website.
File Type:
DWG
File Size:
181 KB
Category::
Dwg Cad Blocks
Sub Category::
Windows And Doors Dwg Blocks
type:
Gold
Uploaded by:

