9x13m second floor house plan AutoCAD drawing
Description
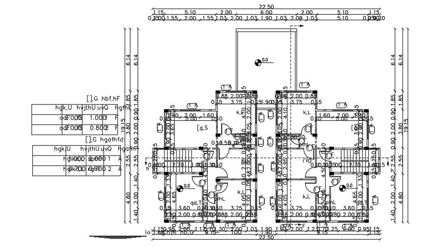
9x13m second floor house plan AutoCAD drawing is given in this file. This is G+ 1 house building. The living room, kitchen, dining, master bedroom with the attached toilet, kid’s room, and common bathroom are available. For more details download the AutoCAD drawing file from our website.
Uploaded by:

