14x12 Meter House Basement Plan CAD Layout File
Description
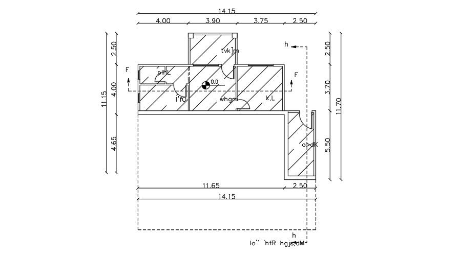
House Basement Plan layout shows a 14x12 meter size. the house Basement Plan Layout includes column placement, 2 rooms, and a staircase is available. centerline plan is also available in this file. The House Basement Plan dimensions are in a meter. Thank you for downloading the AutoCAD drawing file and other CAD program files from our website. Visit CADBULL.COM Site.
Uploaded by:
K.H.J
Jani
