18x11 Meter Apartment Floor Plan CAD Layout
Description
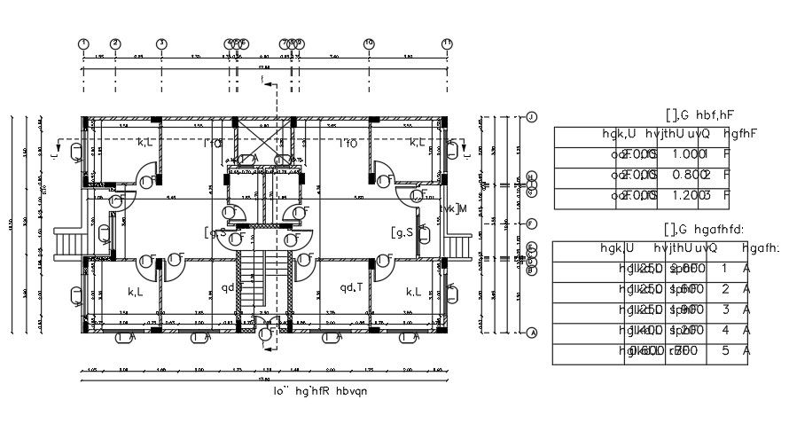
3 BHK Apartment Plan layout shows an 18x11 meter size.3 BHK Apartment Plan shows 3-floor plans. 3 BHK Apartment Plan Layout includes column placement, 3 bedrooms, living room, kitchen, dining area, and staircase is available. centerline plan is also available in this file. 3 BHK Apartment Plan dimensions are in a meter. Thank you for downloading the AutoCAD drawing file and other CAD program files from our website. Visit CADBULL.COM Site.
Uploaded by:
K.H.J
Jani

