Plumbing And Manhole Plan Of 10x16 Meter House DWG File
Description
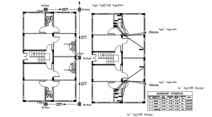
Plumbing And Manhole Plan Of 10x16 Meter House Plan is given in this cad file. There is a 2d plan is available. In this plan, there is manhole detail and inlet-outlet details are also available. House Plan includes plumbing Detail Of Kitchen And Toilet Detail with sizes. Connection details show in this AutoCAD File. In this file Manhole's schedule and branches, diameter is available. Thank you for downloading the AutoCAD drawing file and other CAD program files from our website. Visit CADBULL.COM Site
Uploaded by:
K.H.J
Jani
