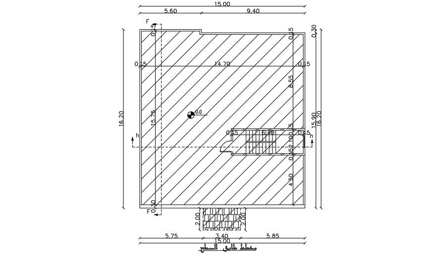
The roof layout of the 15x16m house plan drawing

The roof layout of the 15x16m house plan drawing
Profile

Uploaded by:

Meera

Description
The roof layout of the 15x16m house plan drawing is given. The staircase is provided with a dimension of 6.4x2m. For more details download the AutoCAD drawing file.
Profile

Uploaded by:

Meera

find Latest

Related Files