The electrical layout of the 20x9m house plan drawing
Description
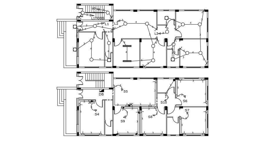
The electrical layout of the 20x9m house plan drawing is given in this AutoCAD model. This is a single story house building. The water lines are provided for the kitchen, attached bathroom, and common bathrooms. For more details download the AutoCAD drawing file.
Uploaded by:
