8x16m Ground Floor House Plan with Furniture Layout DWG file

8x16m Ground Floor House Plan with Furniture Layout DWG file
Profile

Uploaded by:

Meera

Description
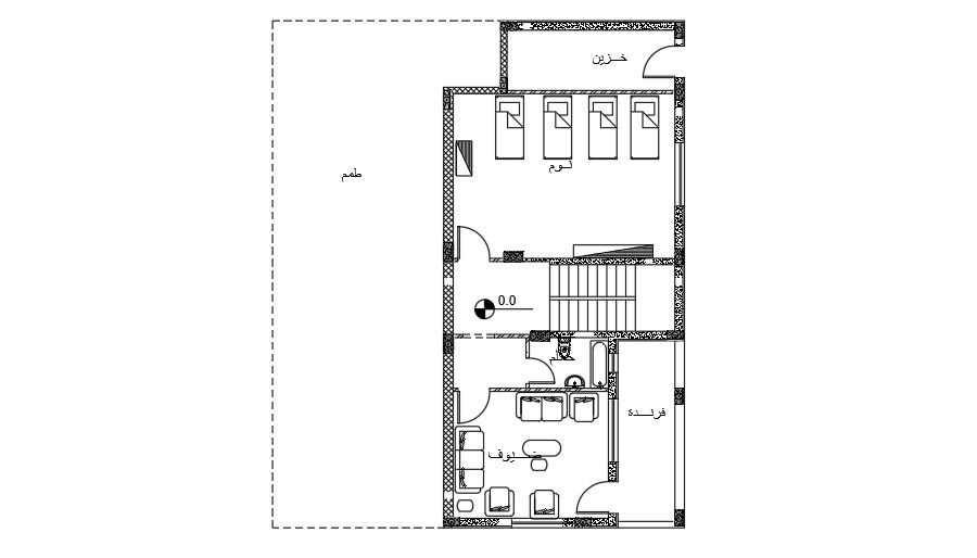
8x16m ground floor furniture’s CAD layout drawing is given in this file. . The living room, master bedroom, balcony, and common bathroom are available. For more details download the AutoCAD drawing file.
Profile

Uploaded by:

Meera

find Latest

Related Files

WhatsApp Chat