20x15m house plan AutoCAD drawing
Description
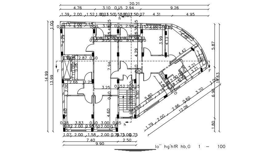
20x15m house plan AutoCAD drawing is given in this file. Two houses are available on this plan. These houses are consisting of the living room, kitchen, master bedroom, kid’s room, guest room, and common bathroom are available. For more details download the AutoCAD drawing file.
Uploaded by:

