20x15m house plan cold and hot water supply drawing
Description
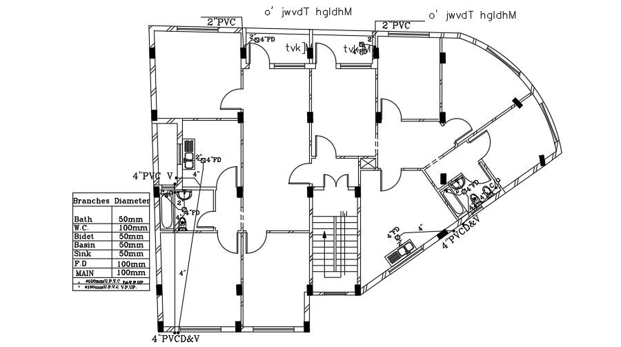
20x15m house plan cold and hot water supply drawing is given in this AutoCAD file. Branches diameters are provided in the table. 4” PVCD pipes are provided. For more details download the AutoCAD drawing file.
Uploaded by:

