A section view of the 17x11m house building drawing download now
Description
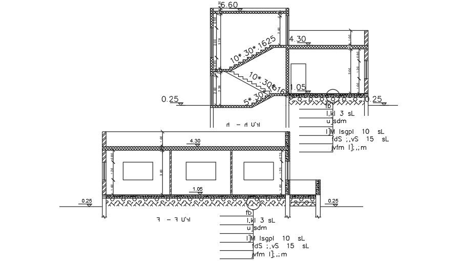
A section view of the 17x11m house building drawing is given in this AutoCAD file. The height of the building is 6.6m. The living room, kitchen, master bedroom, guest room, kid’s room, dining area, and common bathroom are available. For more details download the AutoCAD drawing file.
File Type:
DWG
File Size:
404 KB
Category::
Structure
Sub Category::
Section Plan CAD Blocks & DWG Drawing Models
type:
Gold
Uploaded by:
