17x11m house plan manhole location AutoCAD drawing download now
Description
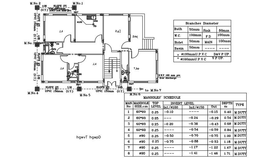
17x11m house plan manhole location AutoCAD drawing is given in this file. Totally 8 numbers of manholes are provided with the dimension. For more details download the AutoCAD drawing file.
Uploaded by:

