17x14m first floor house plan drawing
Description
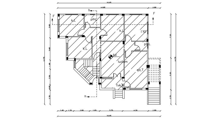
17x14m first floor house plan drawing is given in this AutoCAD file. On this first floor, the living room, kitchen, dining area, master bedroom, kid’s room, guest room, and two common bathrooms are available. For more details download the AutoCAD drawing file.
Uploaded by:

