A section view of the house building drawing
Description
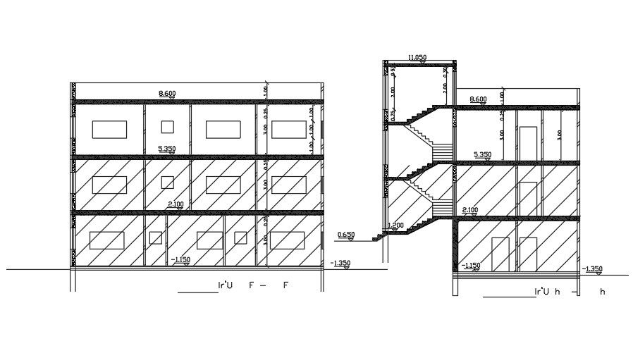
A section view of the house building drawing is given in this AutoCAD file. The total height of the building is 10.9m including water tank. The living room, kitchen, dining area, master bedroom, kid’s room, guest room, and two common bathrooms are available. For more details download the AutoCAD drawing file.
File Type:
DWG
File Size:
183 KB
Category::
Structure
Sub Category::
Section Plan CAD Blocks & DWG Drawing Models
type:
Gold
Uploaded by:

