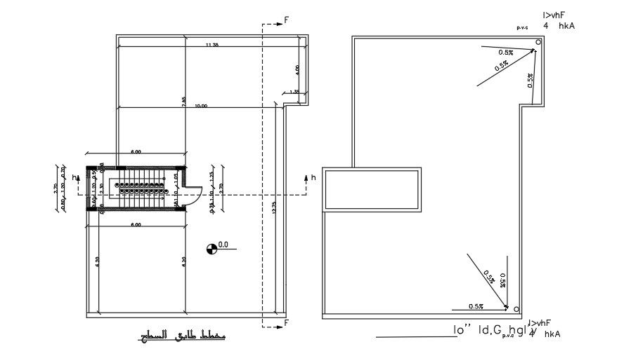
The roof layout and rainwater slope of the 14x17m house plan
Description
The roof layout and rainwater slope of the 14x17m house plan is given in this AutoCAD file. The length and breadth of the staircase are 6m and 2.7m respectively. For more details download the AutoCAD drawing file.
Uploaded by:

