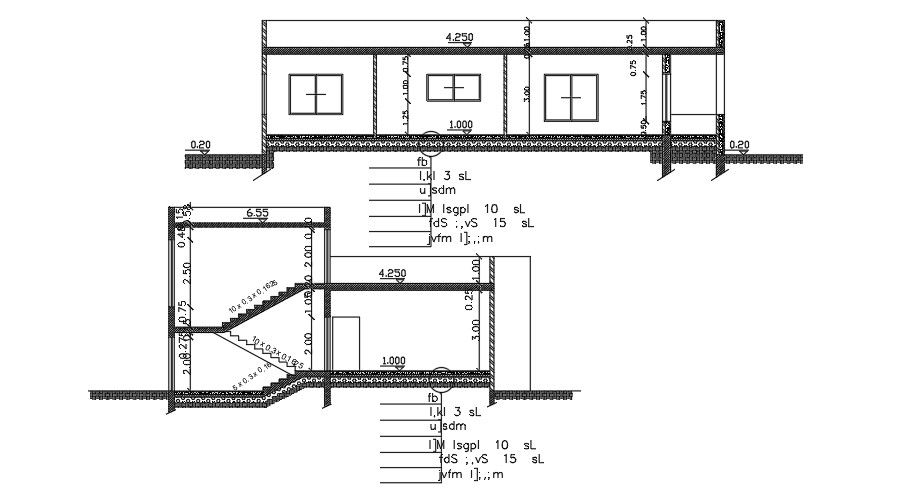
A section view of the 14x17m house building
Description
A section view of the 14x17m house building is given in this file. The total height of the building is 6.55m including water tank. The living room, kitchen, family lounge area with the attached toilet, master bedroom with the attached toilet, kid’s room, guest room, and common bathroom are available. For more details download the AutoCAD drawing file.
File Type:
DWG
File Size:
765 KB
Category::
Structure
Sub Category::
Section Plan CAD Blocks & DWG Drawing Models
type:
Gold
Uploaded by:

