10x16 Meter Ground Floor And First Floor Layout CAD File
Description
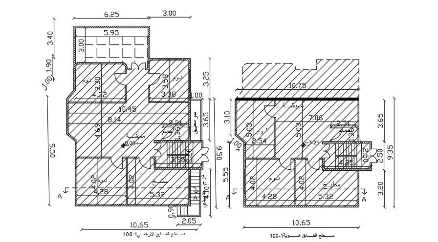
Ground Floor And First Floor Plan show a 10x16 meter size ground Floor And First Floor Plan shows 2-floor plans. Ground Floor And First Floor Plan Layout include column placement, 4 bedrooms, living room, kitchen, dining area, and staircase is available. centerline plan is also available in this file. 3 BHK Apartment Plan dimensions are in a meter. Thank you for downloading the AutoCAD drawing file and other CAD program files from our website. Visit CADBULL.COM Site.
Uploaded by:
K.H.J
Jani
