15x17 Meter Ground Floor House Plan CAD Layout
Description
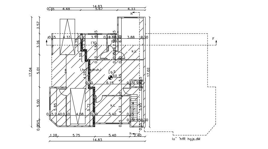
Ground Floor Plan shows a 15x17 meter size. ground Floor Plan shows 3-floor plans. Ground Floor Plan Layout includes column placement, bedroom, living room, kitchen, dining area, and staircase is available. centerline plan is also available in this file. 3 BHK House Plan dimensions are in a meter. Thank you for downloading the AutoCAD drawing file and other CAD program files from our website. Visit CADBULL.COM Site.
Uploaded by:
K.H.J
Jani

