14x17m house plan of the sanitary water line connection drawing
Description
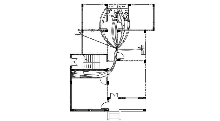
14x17m house plan of the sanitary water line connection drawing is given in this AutoCAD model. The water lines are provided to the attached bathroom, kitchen, and two common bathrooms. For more details download the AutoCAD drawing file.
Uploaded by:

