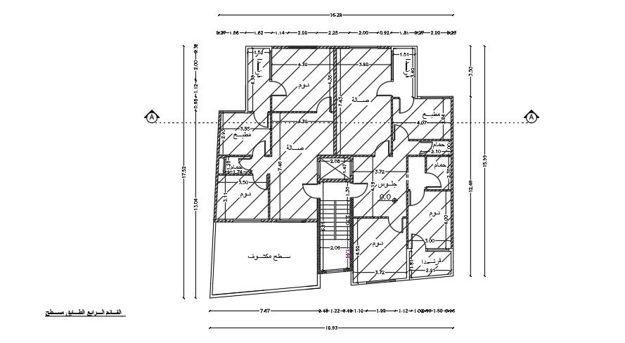
17x17m house plan AutoCAD drawing
Description
17x17m house plan AutoCAD drawing is given in this file. Two houses are available on this plan. In the first house, the living room, master bedroom, kid’s room, kitchen, and common bathroom are available. On the second house, the living room, kitchen, master bedroom with balcony and attached toilet, kid’s room, and common bathroom are available. For more details download the AutoCAD drawing file.
Uploaded by:

