20x20m house plan layout drawing
Description
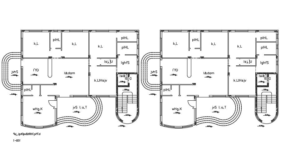
20x20m house plan layout drawing is given in this AutoCAD file. The living room, master bedroom with the attached toilet and dressing room, kid’s room with the attached toilet, guest room, kitchen, dining area, and common bathroom are available. For more details download the AutoCAD drawing file.
Uploaded by:

