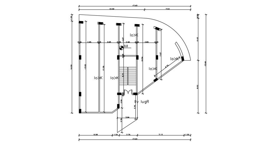
16x14m house plan of the structural layout drawing
Description
16x14m house plan of the structural layout drawing is given in this AutoCAD file. The beam and column layouts are given. For more details download the AutoCAD drawing file.
Uploaded by:

