10x28 Meter House Basement Floor Plan CAD Layout
Description
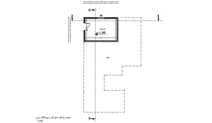
House Basement Floor Plan shows a 10x28 meter size. House Basement Floor Plan Layout includes column placement, sitting area and staircase is available. centerline plan is also available in this file. Basement dimensions are in a meter. Thank you for downloading the AutoCAD drawing file and other CAD program files from our website. Visit CADBULL.COM Site.
Uploaded by:
K.H.J
Jani

