13x17 Meter Apartment First And Second Floor Plan AutoCAD Layout
Description
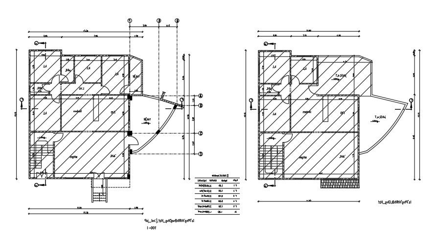
The Apartment First And Second Floor layout shows a 13x17 meter size. Apartment First And Second Floor Plan Layout include column placement, 3 bedrooms, living room, kitchen, dining area, and staircase is available. centerline plan is also available in this file Apartment First And Second Floor Plan dimensions are in a meter. Thank you for downloading the AutoCAD drawing file and other CAD program files from our website. Visit CADBULL.COM Site.
Uploaded by:
K.H.J
Jani

