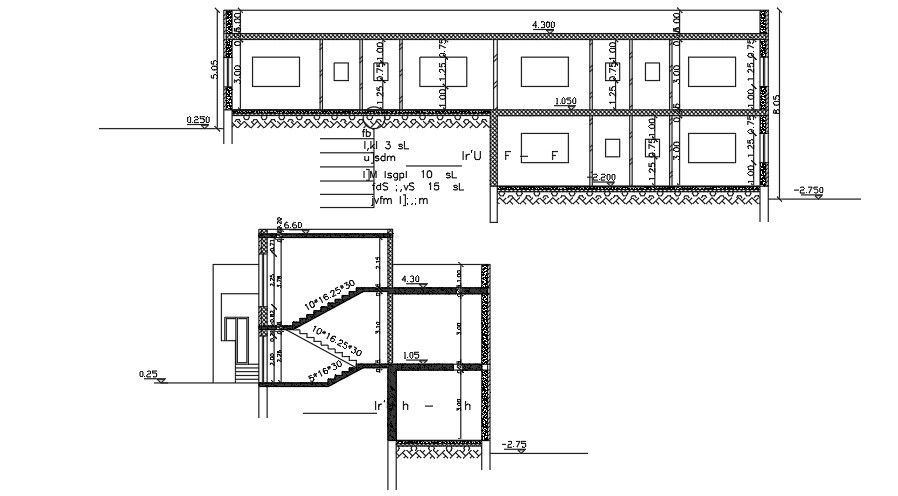
A section view of the 23x12m house building drawing
Description
A section view of the 23x12m house building drawing is given in this file. The total height of the building is 6.6m three are available on this building. The living room, kitchen, dining area, master bedroom with the attached toilet, kid’s room, and common bathroom are available. For more details download the AutoCAD drawing file.
File Type:
DWG
File Size:
933 KB
Category::
Structure
Sub Category::
Section Plan CAD Blocks & DWG Drawing Models
type:
Gold
Uploaded by:

