23x12m first floor house switch point location drawing
Description
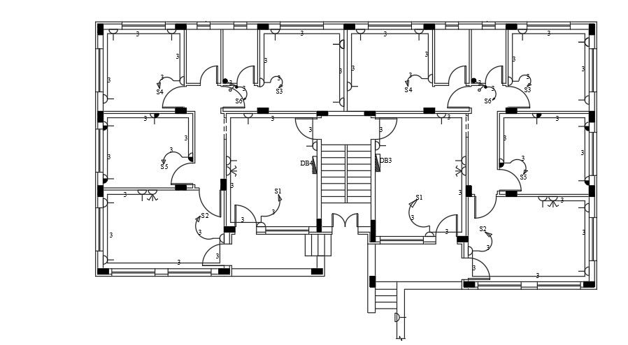
23x12m first floor house switch point location drawing is given in this AutoCAD file. The living room, kitchen, dining area, master bedroom with the attached toilet, kid’s room, and common bathroom are available. For more details download the AutoCAD drawing file.
Uploaded by:
