14x13 Meter Elevation Of House Building DWG File
Description
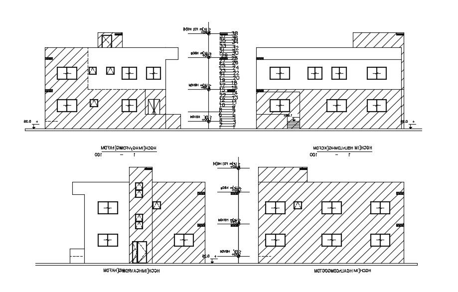
Elevations Of House Building DWG File shown in the file. House Building AutoCAD files are shown in this drawing file. The House Building elevations of the building include window and door sizes. Front Elevation Shops are available. Thank you for downloading the AutoCAD drawing file and other CAD program files from our website. Visit CADBULL.COM Site.
Uploaded by:
K.H.J
Jani

