50x20 Meter Electric Plan Of Apartment AutoCAD File
Description
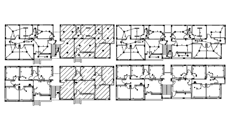
Electric Plan Of Apartment layout plan CAD drawing shows Apartment Plan which ceiling lights, and wiring connection detail. Electric Plan Of Apartment electrical plan drawing DWG file. Thank you for downloading the AutoCAD drawing file and other CAD program files from our website. Visit CADBULL.COM Site
Uploaded by:
K.H.J
Jani
