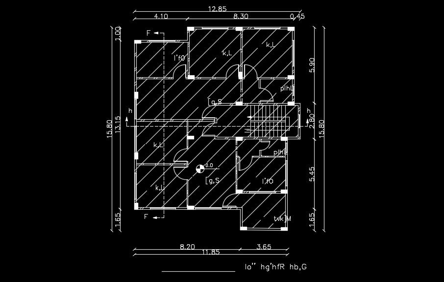
The column layout of the 13x16m house plan
Description
The column layout of the 13x16m house plan is given in this AutoCAD drawing model. The distance between each column is mentioned. This is G+ 3 house building. Two houses are available. The living room, kitchen, master bedroom, and common bathrooms are available. For more details download the AutoCAD file for free from our website.
Uploaded by:
