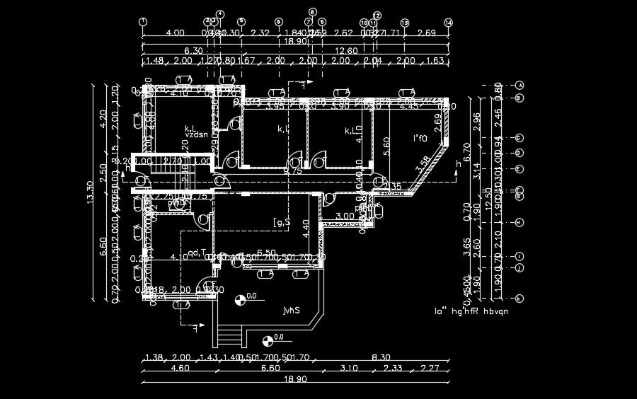
23x22m luxury house plan
Description
23x22m luxury house plan is given in this AutoCAD drawing model. This is a single story house building. The living room, sit out, kitchen, master bedroom with the attached toilet, kid’s room, guest room, and common bathroom are available. For more details download the AutoCAD file for free from our website.
Uploaded by:

