A section view of the 12x16m house building AutoCAD drawing
Description
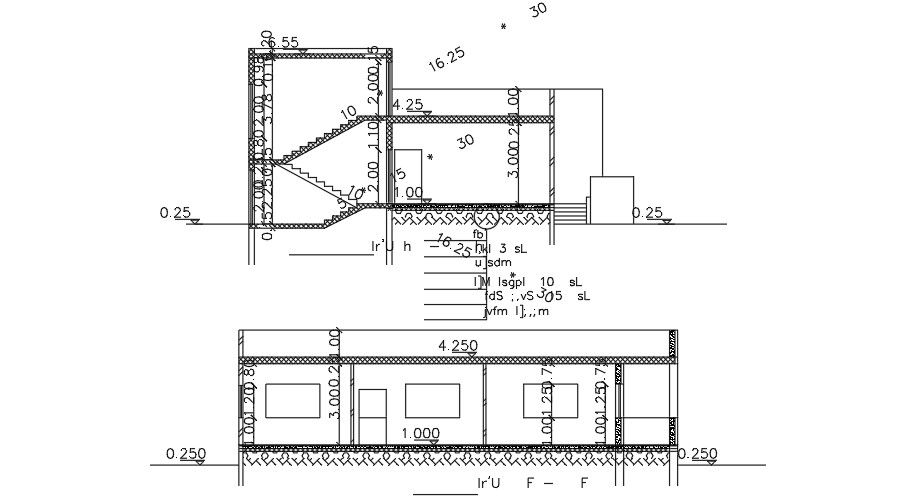
A section view of the 12x16m house building AutoCAD drawing is given in this AutoCAD file. The total height of the building is 6.5m including water tank. This is a single story house building. The living room, kitchen, two kid’s room, guest room, master bedroom with the attached toilet, and common bathrooms are available. For more details download the AutoCAD drawing file from our website.
File Type:
DWG
File Size:
775 KB
Category::
Structure
Sub Category::
Section Plan CAD Blocks & DWG Drawing Models
type:
Free
Uploaded by:

