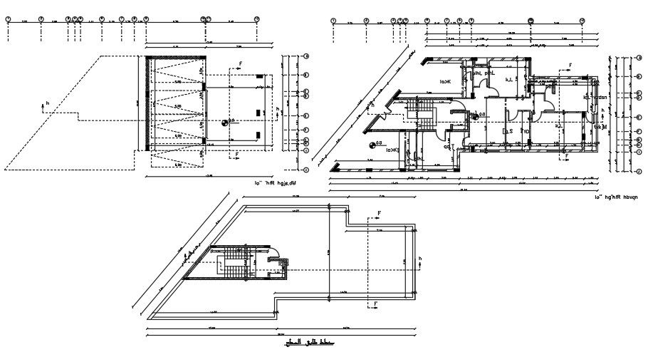
28x15m residential house plan AutoCAD drawing model
Description
28x15m residential house plan AutoCAD drawing model is given in this file. The living room, kitchen, master bedroom with the attached toilet, kid’s room, guest room, and common bathrooms are available. The ground floor is provided for the car parking. For more details download the AutoCAD drawing file from our website.
Uploaded by:

