An elevation view of the28x15m residential house building AutoCAD drawing
Description
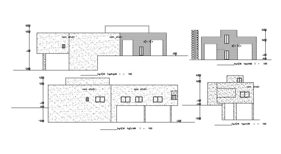
An elevation view of the28x15m residential house building AutoCAD drawing model is given in this file. The height of the building is 6.55m. The living room, kitchen, master bedroom with the attached toilet, kid’s room, guest room, and common bathrooms are available. Ground floor is provided for the car parking. For more details download the AutoCAD drawing file from our website.
Uploaded by:

