A section view of the 28x15m residential house building
Description
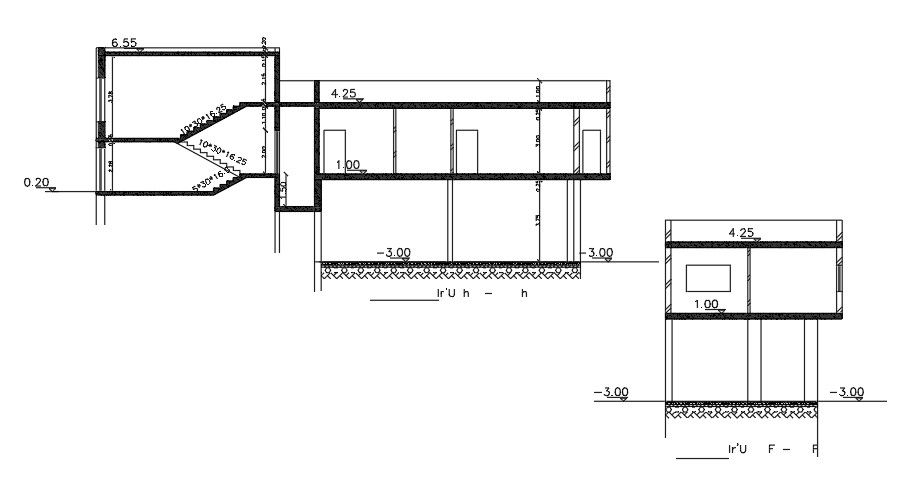
A section view of the 28x15m residential house building AutoCAD drawing model is given in this file. The height of the building is 6.55m. The living room, kitchen, master bedroom with the attached toilet, kid’s room, guest room, and common bathrooms are available. Ground floor is provided for the car parking. For more details download the AutoCAD drawing file from our website.
File Type:
DWG
File Size:
811 KB
Category::
Structure
Sub Category::
Section Plan CAD Blocks & DWG Drawing Models
type:
Gold
Uploaded by:
