28x15m house plan of the manhole location drawing
Description
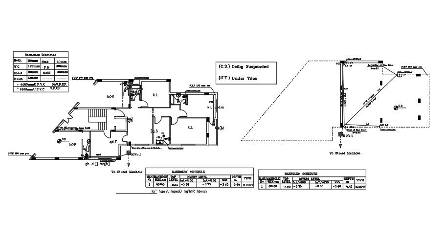
28x15m house plan of the manhole location drawing is given in this AutoCAD file. Manhole dimensions are given in the table. The living room, kitchen, master bedroom with the attached toilet, kid’s room, guest room, and common bathrooms are available. Ground floor is provided for the car parking. For more details download the AutoCAD drawing file from our website.
File Type:
DWG
File Size:
819 KB
Category::
Dwg Cad Blocks
Sub Category::
Sanitary CAD Blocks And Model
type:
Gold
Uploaded by:

