25x20 Meter Elevation Of Shop Building DWG File
Description
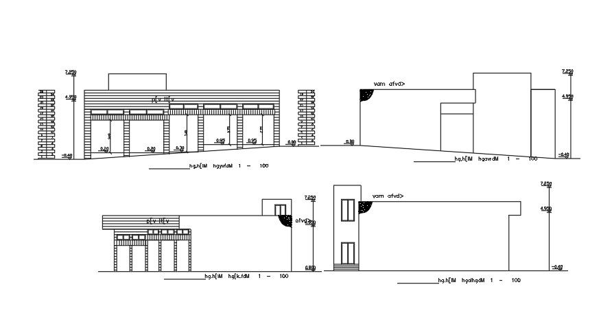
Elevations Of Shop Building DWG File shown in the file. Shop Building AutoCAD files are shown in this drawing file. The Shop Building elevations of the building include window and door sizes. Front Elevation Shops are available. Thank you for downloading the AutoCAD drawing file and other CAD program files from our website. Visit CADBULL.COM Site.
Uploaded by:
K.H.J
Jani

