10x12m home plan AutoCAD drawing
Description
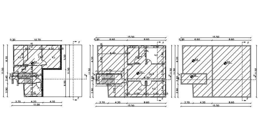
10x12m home plan AutoCAD drawing is given in this file. This is a G+ 1 house building. The living room, kitchen, master bedroom, guest room, kid’s room, and common bathroom are available. For more details download the AutoCAD drawing file from our website.
Uploaded by:

