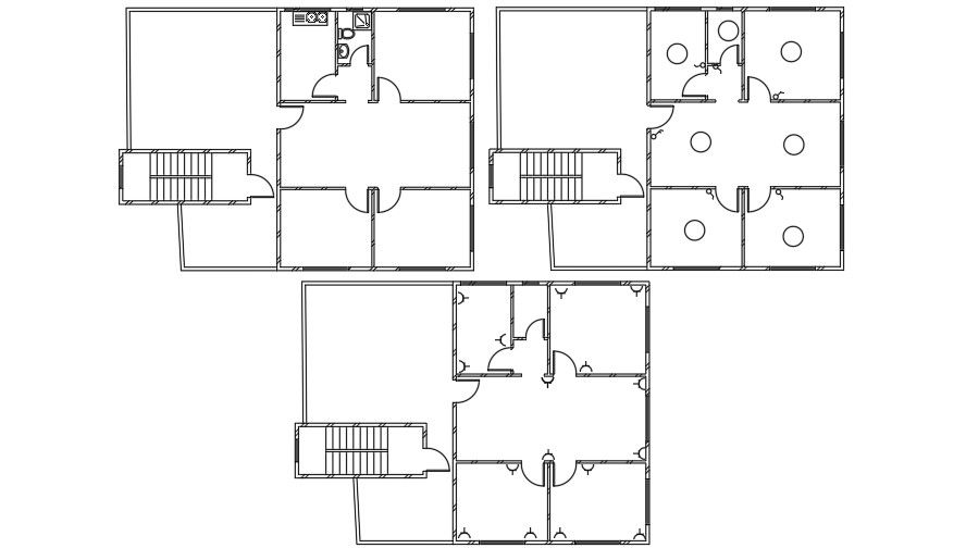
10x12m house plan of the switch point and light fixing location
Description
10x12m house plan of the switch point and light fixing location AutoCAD drawing is given in this file. The living room, kitchen, master bedroom, guest room, kid’s room, and common bathroom are available. For more details download the AutoCAD drawing file from our website.
Uploaded by:

