9x14m house plan 2D AutoCAD drawing model
Description
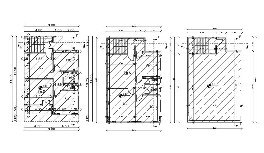
9x14m house plan 2D AutoCAD drawing model is given in this file. This is a G+ 1 house building. The kitchen, living room, master bedroom with the attached toilet, kid’s room, and common bathroom are available. For more details download the AutoCAD drawing file from our website.
Uploaded by:

