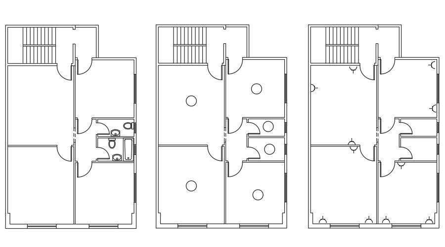
9x14m house plan of the switch point and light fixing location drawing
Description
9x14m house plan of the switch point and light fixing location drawing is given in this AutoCAD file. The kitchen, living room, master bedroom with the attached toilet, kid’s room, and common bathroom are available. For more details download the AutoCAD drawing file from our website.
Uploaded by:
