12x19m ground floor residential house plan AutoCAD drawing
Description
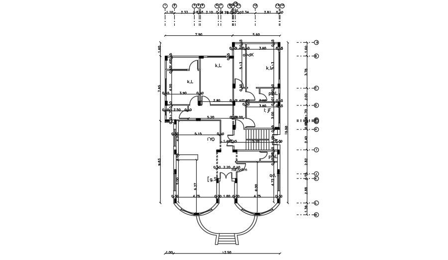
12x19m ground floor residential house plan AutoCAD drawing is given in this file. The living room, kitchen, master bedroom with the attached toilet, kid’s room with the attached toilet, guest room, and common bathroom are available. For more details download the AutoCAD drawing file from our website.
Uploaded by:

