18x14m house building section view AutoCAD drawing
Description
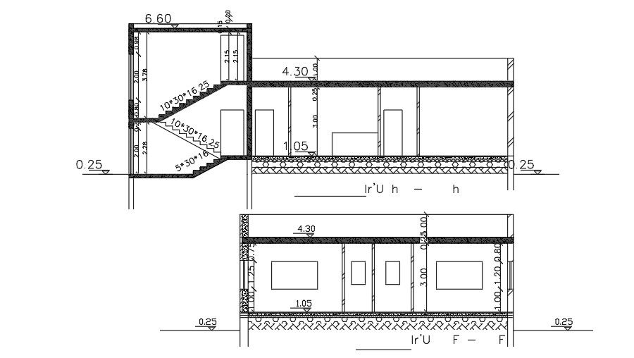
18x14m house building section view AutoCAD drawing is given in this file. This is a single story house building. The total height of the building is 6.6m. For more details download the AutoCAD drawing file from our website.
File Type:
DWG
File Size:
809 KB
Category::
Structure
Sub Category::
Section Plan CAD Blocks & DWG Drawing Models
type:
Gold
Uploaded by:

