21x19m house plan of the front elevation view CAD drawing
Description
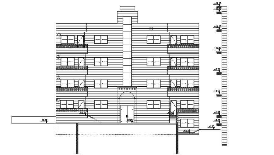
21x19m house plan of the front elevation view CAD drawing is given in this file. The total height of the building is 17.35m. Two houses are available on this plan. The living room, kitchen, master bedroom, family lounge area, kid’s room, guest room, and two common bathrooms are available. For more details download the AutoCAD drawing file from our website.
Uploaded by:

