A layout of the 30x18m house plan AutoCAD drawing
Description
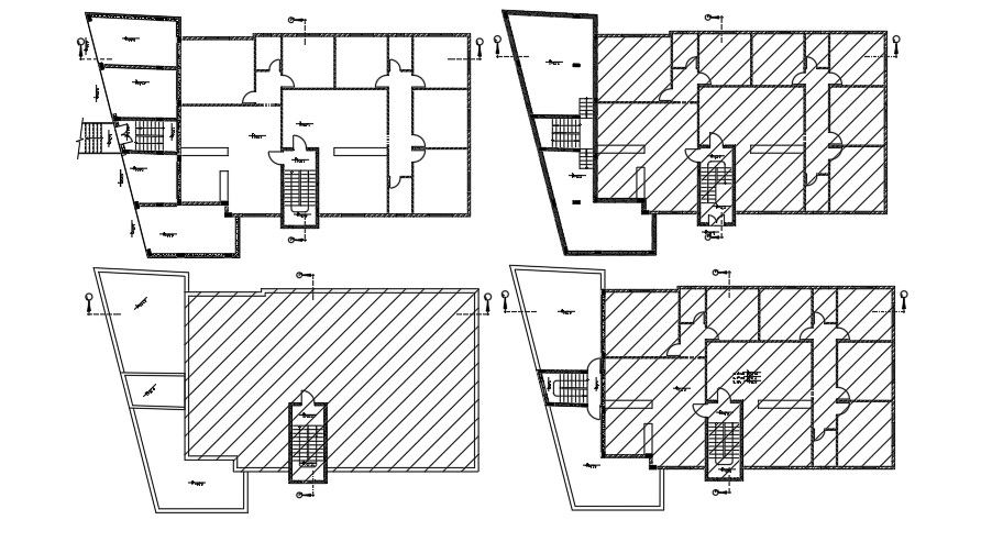
A layout of the 30x18m house plan AutoCAD drawing is given in this file. This is G+ 4 residential building. On each floor, two houses are available. The living room, kitchen, master bedroom, guest room, kid’s room, and common bathroom are available. For more details download the AutoCAD drawing file from our website.
Uploaded by:

