24x15 Meter house plan AutoCAD drawing
Description
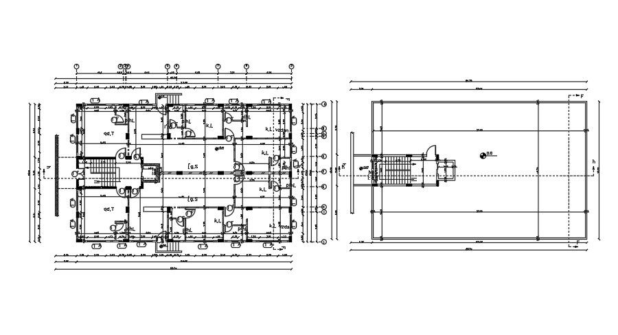
24x15m house plan AutoCAD drawing is given in this file. This is G+ 4 residential building. On each floor, two houses are available. The living room, kitchen, master bedroom, guest room, kid’s room, and common bathroom are available. For more details download the AutoCAD drawing file from our website.
Uploaded by:
K.H.J
Jani

