8x17 Meter House Furniture Layout Plan AutoCAD File
Description
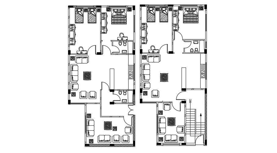
House Furniture Plan Layout shows an 8x17 meter size. House Furniture Plan Layout includes 3 bedrooms, living room, kitchen, dining area, and staircase is available. centerline plan is also available in this file. House Furniture Plan Layout dimensions are in a meter. Thank you for downloading the AutoCAD drawing file and other CAD program files from our website. Visit CADBULL.COM Site.
Uploaded by:
K.H.J
Jani

