10x15m 2D house plan AutoCAD drawing
Description
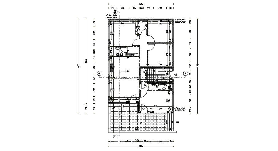
10x15m 2D house plan AutoCAD drawing is given in this file. In this plan, 4” PVC rain water pipe is provided. The living room, kitchen, master bedroom, kid’s room, guest room, and common bathrooms are available. For more details download the AutoCAD drawing file from our website.
Uploaded by:

