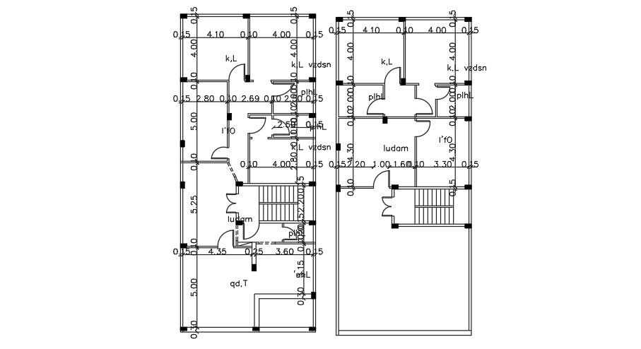
8x20m residential house plan AutoCAD drawing
Description
8x20m residential house plan AutoCAD drawing is given in this file. The living room, master bedroom with the attached toilet, guest room, kid’s room, kitchen, dining area, and common bathroom are available. For more details download the AutoCAD drawing file from our website.
Uploaded by:

