14x10m residential house plan AutoCAD drawing model
Description
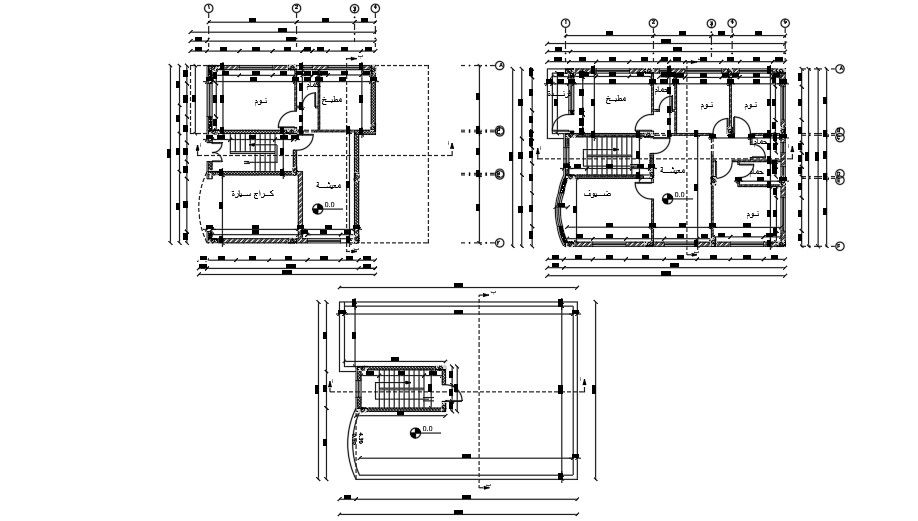
14x10m residential house plan AutoCAD drawing model. The living room, kitchen, master bedroom with the attached toilet, family lounge area, guest room, two kid’s room, common bathroom are available. For more details download the AutoCAD drawing file from our website.
Uploaded by:

